Cher(e)s ami(e)s, chers partenaires,
C'est avec un réel plaisir que nous vous proposons enfin la septième Newsletter de la « Cité des Énergies ». Après un long silence lié en grande partie à l'investissement total de nos équipes dans la réalisation et le maintien des plannings de ce chantier, nous vous proposons une rétrospective accompagnée d'un état des lieux et d'une projection de fin de travaux.
En effet, tandis que la conception du bâtiment du BIAM naissait d'une feuille blanche à l'automne 2015, suivie du démarrage de sa construction en avril 2018, nous sommes entrés début 2020, dans la dernière phase de sa réalisation. C'est le fruit d'un engagement sans relâche de toute l'équipe depuis 4 ans qui nous aura permis de tenir un planning de livraison ambitieux. Je souhaite à nouveau vous en remercier chaleureusement.
Cette véritable aventure humaine nous a unis autour d'un ouvrage de R&D d'avant-garde qui devait être livré au printemps et rapidement suivi par notre emménagement. Malheureusement, l'hiver 2020 aura été marqué par les secousses d'une pandémie de COVID19 sans précédent qui nous impacte fortement. Dans ce contexte, le chantier du bâtiment du BIAM s'est arrêté du 17 mars au 28 mai, avec une conséquence immédiate sur la date de livraison de la « Cité des Énergies ».
Aujourd'hui, des solutions sont à l'étude pour parachever la construction de notre Institut et offrir ainsi à nos équipes de recherche la possibilité d'investir les lieux fin 2020. Ce nouveau bâtiment, ergonomique et aux meilleurs standards internationaux, réunira toutes les conditions nécessaires à la poursuite des travaux de recherche, y compris en termes d'environnement et de qualité de vie au travail. Cependant, atteindre ce jalon fin 2020 reste un challenge, car il dépendra également de la santé des salariés et de l'aptitude des entreprises à revenir à des conditions de travail nominales.
Cette 7e newsletter est aussi l'occasion de partager avec vous d'autres moments forts survenus ces derniers mois comme la célébration des 60 ans du Centre de Cadarache ou l'avancement technique du bâtiment et son positionnement en cours dans la zone de la « Cité des énergies ». Nous allons également vous présenter les entreprises, les femmes et les hommes qui œuvrent dans l'ombre pour la réalisation de ce grand projet au bénéfice de la R&D dans le domaine des énergies bas-carbone. Tous sont au service du collectif et du territoire afin de promouvoir à l'international, la visibilité et l'excellence des recherches scientifiques conduites en Région Sud Provence-Alpes-Côte d'Azur par les équipes du BIAM.
Enfin, nous sommes fiers de vous annoncer que, malgré les circonstances et le surcroît de travail occasionné par ce « presque » déménagement..., les équipes du BIAM ont publié cette année encore, de nombreux articles scientifiques dans des revues prestigieuses que vous pourrez retrouver sur notre site internet
https://biam.cea.fr/.
Restons tous solidaire pour réaliser ensemble nos rêves !
Prenez soin de vous et bonne lecture !

Cyrille FORESTIER, Chef de projet "Construction du bâtiment du BIAM"
Le Centre de Cadarache fête ses 60 ans, en présence de l’Administrateur général, François Jacq
Le 14 octobre 1959, un décret est publié au Journal Officiel qui déclare d’utilité publique la construction du Centre de Cadarache, sur la commune de Saint-Paul-lez-Durance. Alors que la biologie est née dès 1945 au CEA afin d’étudier les effets des rayonnements ionisants sur l’environnement et le vivant (radioprotection, radiobiologie et radiotoxicologie), c’est dans les années 70 que la recherche sur les microorganismes, les algues et les plantes voit le jour à Cadarache. Aujourd’hui, Cadarache est l’un des plus grands centres européens en matière de recherche dans le domaine des énergies bas-carbone, des technologies pour la santé, l’information et la défense/sécurité intérieure. Tout cela méritait bien un coup de chapeau tiré à l’occasion de notre anniversaire.
Eh non, nous ne rêvions pas ! C’est en compagnie de l’Administrateur général, que la Patrouille de France est venue clore cette belle journée par une démonstration acrobatique pour les 60 ans du site. À bord de leurs Alpha jet, ces ambassadeurs de l'aéronautique française ont même effectué un passage au-dessus du bâtiment du BIAM… Merci à eux pour ce magnifique spectacle !
La Patrouille acrobatique de France survole le bâtiment du BIAM – Crédit photo : Cyrille FORESTIER, CEA
Un voyage de presse national dédié à la découverte de la R&D sur les microalgues à Cadarache
Le 31 janvier 2020, afin de promouvoir les progrès de la R&D au CEA dans le domaine des biocarburants de 3e génération, le BIAM a organisé un voyage de presse national. L'objectif était de présenter les acteurs de la filière dans le Sud de la France, à savoir, DRF-BIAM et DRT CEA Tech PACA à Cadarache, DRF-IRIG à Grenoble, et leur principal collaborateur, le groupe TOTAL. Une douzaine de journalistes avait fait le voyage et découvert
l'équipe Bioénergies et Microalgues du BIAM, notamment la plateforme de recherche biotechnologique
HelioBiotec, l'équipe de
CEA Tech PACA et sa plateforme bioprocédés et microalgues. Ce fut également l'occasion pour eux de découvrir le futur bâtiment du BIAM.
L'enjeu était de démontrer qu'il est nécessaire d'améliorer les capacités biologiques des microalgues
via une sélection et optimisation des souches, tout en développant en aval les procédés de culture, de récolte et d'extraction. Le défi biotechnologique majeur est de domestiquer les souches de microalgues pour accroître leur productivité tout en diminuant les coûts de production afin d'atteindre une rentabilité économique. Les progrès récents de la génomique, de la génétique, de la lipidomique, des procédés et technologies de culture, développés notamment par les équipes du CEA et du CNRS, apportent aujourd'hui les outils et les compétences nécessaires pour progresser dans l'atteinte de ces enjeux.
Le dossier de presse est téléchargeable ici :
Microalgues, de la recherche à l'industrie.
De gauche à droite, François IOOS (Directeur, Biofuels Division, TOTAL), Laurent FOURAGE (responsable de programme, Biofuels Division, TOTAL), Jacques VAYRON (directeur du Centre CEA Cadarache), Jean-François SASSI (responsable de groupe, CEA Tech PACA), David PIGNOL (directeur du BIAM), Cyrille FORESTIER (directeur-adjoint du BIAM). Crédit Photo : Aude FERRIERE-JEANNEAU, CEA
Le BIAM s'intègre dans un schéma d'aménagement territorial
La construction du bâtiment de R&D du BIAM s'inscrit dans un projet plus vaste qui consiste en l'aménagement des terrains, propriétés du CEA, dans la zone de la « Cité des Énergies ». Ce projet d'aménagement territorial baptisé "
En'Durance Énergies "et porté par le directeur du Centre, Jacques VAYRON, a pour objectif de réunir sur cette future zone partenariale, tous les acteurs de la chaîne de valeur des énergies bas-carbone, allant de la formation et l'enseignement supérieur, la recherche et l'innovation, jusqu'à l'industrie.
Il s'agit maintenant d'aménager les terrains au voisinage du bâtiment du BIAM pour créer un espace d'accueil dédié aux entreprises partenaires de R&D du CEA dans les domaines liés aux énergies afin d'y installer leurs laboratoires, bureaux, locaux industriels, pilotes, démonstrateurs, zones d'expérimentations ou showroom. L'objectif est d'optimiser les retombées économiques des investissements réalisés pour soutenir l'innovation, de contribuer au développement des compétences et expertises des entreprises régionales, et de conforter l'ancrage territorial du CEA.

Au premier plan, et à proximité immédiate des terrains de tennis et du stade de football se trouve le bâtiment du BIAM, juste derrière celui de CEA Tech PACA. Sur ce campus, se dessinent les parcelles numérotées de 1 à 7 qui pourraient constituer la future zone En’Durance Énergies. Crédit photo : Pascal Sarrabère, CEA
L'une des premières étapes de cet aménagement a conduit à réaliser des investissements afin de fluidifier la circulation autour du Centre. Le tout premier d'entre eux, coordonné par l'Agence ITER France, fut la
réouverture le 14 mai 2018 du pont-barrage EDF à proximité du Château de Cadarache.
Le pont-barrage EDF de Cadarache et sur sa droite, l’un des 7 lacs de Beaumont de Pertuis. En arrière-plan, l’autoroute A51 qui relie Aix-en-Provence à Tallard. Crédit photo : G. Lesénéchal - CEA Cadarache
Puis, ce fut au tour du CEA d'enclencher les travaux de construction du
premier des 2 ronds-points desservant depuis 2019 la zone de la « Cité des Énergies », prolongé par une
voie de contournement. Cette voie qui permet de fluidifier aujourd'hui la circulation de la porte de la Cité du Centre a été créée pour rejoindre en toute sécurité la commune de Rians et la zone d'activités du Castellet de Saint-Paul lez Durance. Le
second rond-point sera construit en 2023 par le CD13 pour sécuriser le croisement entre la RD 952 qui relie le Centre à Saint-Paul lez Durance et la route d'accès à la zone « Cité des Énergies ».
Rond-point desservant la zone « Cité des Énergies » (en face), la RD952 (à gauche), la porte de la Cité (à droite) et la voie de contournement de cette porte vers Rians d’où est pris le cliché - Crédit photo : Cyrille FORESTIER, CEA.
Enfin, il était indispensable de construire un
bassin écrêteur à ciel ouvert pour la rétention des eaux pluviales collectées sur le bâtiment, la parcelle du bâtiment du BIAM et la zone de la « Cité des Énergies ». C'est chose faite, un bien bel ouvrage, construit et mutualisé avec la porte de la Cité du Centre de Cadarache !

Le bassin collecteur et de rétention des eaux pluviales situé au Nord-Est du bâtiment du BIAM - Crédit photo : Cyrille FORESTIER, CEA.
INTERVIEW de la société FROIDS et MESURES

L’équipe chantier de FROIDS et MESURES - Crédit photo : FROIDS et MESURES et Aude FERRIERE-JEANNEAU, CEA
Quelle est votre rôle sur le chantier du BIAM ?
Notre entreprise Froids & Mesures a été retenue pour accompagner le CEA Cadarache dans l'installation des 13 phytotrons dont 2
in-vitro, d'un grainier et d'une zone de préparation des solutions nutritives pour automatiser l'irrigation de tous les phytotrons.
A quoi serviront ces équipements ?
Les phytotrons serviront à reproduire différents climats artificiels en termes de température, hygrométrie, lumière (spectre et intensité lumineuse), pour pouvoir y mener différents tests en Recherche & Développement sur des plantes, tel que des tests de croissance, de pathologie, de résistance, etc... Le grainier quant à lui, permettra la conservation de graines dans des conditions climatiques maitrisées.
Cette installation complète équipera la plateforme Phytotec*, en support à toutes les équipes de R&D du BIAM, mais aussi dans le cadre de collaboration académiques.
L'installation est-elle finalisée ?
Oui tout est bouclé. Mais au moment de la réouverture du chantier, il nous restera à procéder à la mise en route des machines et leurs paramétrages avant de réaliser les tests de bon fonctionnement.
Ces équipements ont été installés entre juillet 2019 et janvier 2020 sous la responsabilité de notre Chef de chantier David DOUESSIN, de nos techniciens Clément et Grégory, accompagnés de Didier, Chef d'équipe et Najib, technicien électricien. Rémy notre projecteur, assure toute la conception sur mesure des phytotrons et gère les achats techniques.
Dites-nous en plus sur votre entreprise...
Froids & Mesures est forte d'une expérience de plus de 35 ans dans la conception sur mesure, la fabrication et l'installation d'enceintes climatiques capables de recréer un environnement spécifique. Au fil du temps, nous nous sommes notamment spécialisés dans le domaine des équipements à l'attention du secteur de la recherche sur le végétal.
Nous garantissons également la fiabilité, la précision et la performance de ces équipements. L'innovation permanente nous permet de nous adapter à des besoins évolutifs et précis, notamment concernant les luminaires LED avec un choix de partenariat ciblé dans la R&D du végétal. Depuis 2016, avec le rachat de la Société ROBIN spécialisée dans la fabrication et la commercialisation de matériel de laboratoire, nous proposons une palette élargie d'équipements comme des bains-marie, des agitateurs, des portoirs pour boîtes de pétri ou encore des étuves.
*Phytotec est une plateforme d'expérimentations végétales en conditions contrôlées mise au service des industriels et de la recherche dans le but de réaliser leurs expériences de R&D.
Plus d'info :
https://biam.cea.fr/drf/biam/Pages/plateformes/phytotec.aspx
Contacts Froids et Mesures : contact@froids-et-mesures.fr daniel.foinel@froids-et-mesures.fr
Chaque mois, Frédéric LESCURE, notre référent HSE collecte des indicateurs quantitatifs, relatifs aux conditions de travail et aux expositions professionnelles sur notre chantier. Ces données constituent un « tableau de bord » précieux qui rassemble les informations les plus utiles à l'amélioration de la prévention et de la connaissance des risques professionnels. Ce rapport régulier participe aussi à l'évaluation de l'efficacité de leur prise en charge par notre cellule HSE composée de Frédéric bien sûr, mais également de Cyrille FORESTIER (Chef de Projet) et de Carole RHUL, notre toute nouvelle Ingénieure Sécurité Projet.

Évolution du nombre d’heures travaillées, du taux de fréquence et du taux de gravité des accidents sur le chantier du BIAM depuis avril 2018
Thomas DELCOURT, responsable financier du BIAM
Pouvez-vous vous présenter et présenter votre fonction et vos principales missions ?
Je suis responsable financier au BIAM depuis Juillet 2019.
Au sein du projet de la « Cité des Énergies », j'interviens surtout sur le suivi financier et le reporting auprès de la direction financière de DRF (Direction de la Recherche Fondamentale) et du CEA, via la mise à jour de la FAP (Fiche Avancement Projet). Je m'occupe aussi de faire remonter nos dépenses auprès de nos financeurs à savoir : l'État, la Région SUD, le FEDER, le Département des Bouches du Rhône et la Métropole Aix-Marseille Provence.
Crédit Photo : Aude FERRIERE-JEANNEAU, CEA
De façon plus sporadique, j'assiste le chef de projet sur son suivi des marchés et des avenants.
Quelles sont les qualités requises pour l'exercice de votre métier ?
Avoir une vision d'ensemble du terrain et être proche de ce dernier afin d'apporter des solutions adaptées à la vie d'un projet, jalonné d'imprévus, tout en satisfaisant à la rigueur financière imposée pour un tel projet.
Cette part du métier et les exigences respectées ont toujours facilité un véritable travail de synergie entre les équipes du centre de Cadarache et du BIAM. Cela nous a permis de mieux gérer l'arrivée de l'épidémie de COVID19.
Quel est selon vous, LE challenge de ce projet ? Le moment fort ? Votre attente ou votre meilleur souvenir ?
Notre nouveau challenge sur le projet de la « Cité des Énergies » devient la finalisation de la construction du bâtiment dans l'optimisation des coûts impactés par l'épidémie et des attentes des futurs occupants.
Le moment fort sera pour moi, sans conteste, l'emménagement dans le futur bâtiment.
Les équipes du BIAM vont pouvoir évoluer dans un environnement de qualité en profitant d'espace plus adaptés et d'équipements neufs.
Après le déménagement, nous allons pouvoir souffler et penser au futur du BIAM, nous avons encore de la place sur le terrain !
Présentation de la suite de l'équipe du Service des Technologies de l'Information et de la Communication (STIC)

L’équipe du Service des Technologies de l’Information et de la Communication - Crédit Photo : Aude FERRIERE-JEANNEAU, CEA
Pouvez-vous, vous présenter et décrire votre rôle sur le site Cadarache ?
Frédéric Milleville : Je suis chef de groupe Télésurveillance et Contrôle-Commande (GTCC) au Service des Technologies, Information et Communication (STIC).
Eric Giupponi : Depuis 2015, j'occupe le poste d'ingénieur infrastructure pour le compte du Groupe lnfrastructure des Réseaux et Télécommunication (GIRT) qui est lui-même rattaché au STIC pour lequel j'assure aussi la fonction d'adjoint au chef d'installation. Mes missions sont très diversifiées. Pour ce qui est de l'infrastructure, mon rôle est d'assurer l'exploitation des locaux techniques et des salles serveurs du STIC. Je travaille également sur d'autres projets en tant que chargé d'affaire pour la partie Voix-Données-lmages.
Josselin Robichon : Je suis chargé de projet au sein du GTCC du STIC, spécificité Téléalarme/Télésurveillance. Je suis également référent sur l'expertise de la sonorisation et de la protection foudre des courants faibles et la protection physique pour la clôture de site et ses équipements.
Damien Rogissart : Je suis chargé d'affaires et pilote de contrats en Télésurveillance au sein du GTCC du STIC. Je suis également référent sur les Systèmes de Sécurité Incendie. C'est à ce titre que j'interviens sur le projet Cité des Énergies.
Quelle est votre fonction sur le projet ?
Vos principales missions ?
F.M : De façon générale, je manage l'ensemble des « Équipes » du STIC-GTCC sur le chantier « Cité des Énergies », pour lequel je suis responsable du marché des courants faibles (détection incendie et téléalarme, la sonorisation, la détection gaz et le contrôle d'accès) et protection physique.
J'ai plus spécifiquement un rôle de conseil et de vérification « Coût/Performance/Planning », c'est-à-dire un rôle de surveillance du rendu des entreprises. J'interviens sur la vérification des attentes de Cyrille Forestier, Chef de projet « Cité des Énergies ».
Dans mon équipe, Frédéric Reygrobellet intervient sur la partie « Contrôle d'accès » et Bruno Balorin sur celle du « Design des baies », [NDLR, armoires renfermant les serveurs informatiques].
Je laisse Josselin et Damien se présenter eux-mêmes, tout comme Éric pour sa partie.
Crédit Photo : Aude FERRIERE-JEANNEAU, CEA
J.R :Depuis le début de l'année, je suis pilote opérationnel sur la partie « courants faibles et protection physique ».
Je fais actuellement partie de la Maîtrise d'Œuvre pour les courants faibles en tant que Chargé de marché du lot 7B qui concerne les métiers de la télésurveillance tels que la sécurité incendie, la détection gaz, le contrôle d'accès, la sonorisation ou encore la téléalarme. Je suis également en charge du lot 7C, qui traite de la protection physique [clôture et ses équipements] de la zone BIAM.
Au sein du projet de la « Cite des Énergies » j'ai participé à la rédaction du cahier des charges sur la partie sonorisation.
D.R : J'accompagne au quotidien le pilote opérationnel du lot Courants Faibles, afin de lui apporter mon expertise sur la partie Système de Sécurité Incendie en termes de validation des documents, de conformité réglementaire et de visites de chantier. Au même titre j'ai également contribué à la rédaction du cahier des charges du lot. J'assiste également les équipes lors des échanges avec le Coordinateur du Système de Sécurité Incendie.

E.G : Pour ma part, j'interviens sur le bâtiment du BIAM en tant que Chargé d'Affaire sur le lot 7A qui regroupe le déploiement des différents réseaux informatiques, la téléphonie et tout ce qui concerne les images et la vidéo.
Quelles sont les qualités requises pour l'exercice du Métier ?
F.M : Bien connaitre les différents métiers de mon équipe et avoir conscience de leur charge de travail, avoir de très bonnes compétences en organisation, être acteur dans la cohésion d'équipe et savoir leur venir en support en cas de besoin.
E.G : Le relationnel est très important aussi bien avec l'exploitant qu'avec tous les lots impliqués dans le projet. L'adaptabilité par rapport au terrain face aux différents corps de métier est tout aussi important pour travailler en synergie. Enfin, être multidisciplinaire au niveau technique pour avoir une vision d'ensemble des différents corps de métiers.

J.R : Être ouvert au sein de l'équipe et à l'écoute des différents corps de métiers. S'adapter et anticiper autant que possible tout en sachant appréhender le sujet dans sa globalité.
D.R : La rigueur en premier lieu car elle est indispensable en technique et toujours pertinente sur les sujets de sécurité.
Sur le métier de l'incendie plus spécifiquement, c'est être capable de prendre un certain recul pour mener des réflexions globales. Le meilleur système de sécurité incendie n'est pas le plus impressionnant, mais le plus adapté aux risques et le plus simple possible.
Quel est votre plus gros challenge sur ce projet ? Le moment fort ? Votre attente ou votre
meilleur souvenir ?
F.M : Un challenge que j'ai relevé sur le projet « Cite des Énergies » fut la clôture de la fin de phase d'étude détaillée, car cette phase a dimensionné et sécurisé la réalisation actuelle. Le challenge reste aussi le respect de la bonne réalisation de nos marchés dans le respect du planning.
Mon meilleur souvenir est la pause de la première pierre de la « Cite des Énergies » car c'est un projet phare du CEA Cadarache dans le domaine des énergies bas-carbone. C'est aussi une réelle chance pour favoriser le développement de collaborations entre les directions du CEA et les partenaires industriels du territoire.
E.G : En termes de challenge, la tenue du planning est un enjeu important.
L'alchimie qui se dégage lors des réunions de travail reste pour moi un moment fort. Tout comme l'adéquation travail réalisé sur plan et la livraison du bâtiment final lorsque toutes les machines seront transférées et connectées.
Mon meilleur souvenir reste les réunions de travail avec l'exploitant au niveau des mappages des zones.
J.R : Suite à la passation d'activité avec Sébastien Minéo fin 2019, mon challenge est d'être immédiatement opérationnel car le chantier est déjà très avancé. Cela implique de reprendre toutes les actions réalisées et de mobiliser les équipes jusqu'à la phase de réception du bâtiment.
Le moment fort sera la phase finale, la réception du bâtiment.
En termes d'attentes, je suis très heureux d'intégrer l'équipe projet « Cite des Énergies » pour le mener à bien jusqu'à l'inauguration officielle.
D.R : LE challenge à mon sens, est de conserver tous ensemble notre adaptabilité pendant cette phase de réalisation et d'être capables à tout moment de gérer les aléas qui s'imposent à nous sur le terrain.
Le moment fort : l'enclenchement du lot courants faibles, car c'est le coup de pistolet qui donne le départ du marathon. Mon meilleur souvenir est sans doute ma première visite du bâtiment tout juste construit, à la découverte d'un lieu que je connaissais par cœur seulement sur plans. Et mon attente aujourd'hui est l'inauguration et l'entrée des équipes du BIAM dans les nouveaux locaux qui élèveront encore plus haut leur domaine d'excellence dans le domaine des biotechnologies.
Juste avant le début du confinement en mars 2020, plus de 120 personnes étaient présentes certains jours sur le chantier du BIAM ! Du lundi au vendredi, souvent même le samedi afin de limiter la coactivité à l'intérieur du bâtiment, tous les corps d'état secondaires s'affairaient pour livrer le bâtiment fin avril. Pour les encadrer, y compris les samedis, toujours présente la même joyeuse équipe de maitrise d'œuvre et de maitrise d'ouvrage : merci à eux (cf. newsletter
1 et
2) !
Mais où en étions-nous en mars 2020 ?
Un bâtiment entouré de ses voiries et paré de son bardage
Début mars, la physionomie du terrain aux abords du bâtiment a bien changé ! D'un terrain vague, tantôt poussiéreux, tantôt boueux par jour de pluie, le bâtiment domine maintenant une belle voirie contrastée qui met en valeur les vitrages et bardages du bâtiment. C'est la société VALERIAN-SPIE-BATIGNOLLES qui avait réalisé le terrassement de la parcelle au printemps 2018 (cf.newsletter 2), aidé de la société COLAS, laquelle a réinvesti le chantier pour cette tâche. Aujourd'hui, c'est un vrai plaisir que d'emprunter cette voirie lourde et circulaire autour du bâtiment : fini la poussière soulevée, bonjour la sécurisation des déplacements, des livraisons et des futures interventions pour les secours !
Réalisation de la couche de forme sur le terrain naturel, puis des différentes couches de revêtements bitumineux pour obtenir la voirie lourde, en façade Sud du bâtiment - Crédit photo : Cyrille FORESTIER, CEA
Pour les façades, le choix du bardage en Équitone qui allait être rapporté sur l'ossature secondaire en bois a été décidé il y a quelques mois (cf.newsletter 6). Depuis, des centaines de plaques, toutes de formes et dimensions distinctes sont venues draper le bâtiment : eh hop, une belle couleur carbone pour le bâtiment de recherche (BR), et une lumineuse couleur taupe pour le bâtiment de recherche et développement (BRD).
In fine, sauf en quelques points singuliers en interface avec d'autres lots, par exemple lors de traversées nécessaires pour la ventilation, les façades sont quasi-intégralement posées. Et pour ciseler cette façade, des épines verticales et des cadres rectangulaires apparaissent. Et voilà, le travail : merci au groupe ARBONIS, filiale de VINCI Construction France ! De même pour les portes, fenêtres, brise-soleil à lames orientables, issues de secours... bref, toutes les menuiseries extérieures sont posées et le bâtiment se retrouve hors d'air : merci également aux équipes de LABASTERE habitat !

Le bâtiment de recherche, vu depuis sa façade Sud avec l’entrée principale à gauche - Crédit photo : Cyrille FORESTIER, CEA

Le bâtiment de recherche et développement, vu depuis sa façade Nord. Sur sa gauche, le poste électrique HT-BT - Crédit photo : Cyrille FORESTIER, CEA
Des bâtiments annexes mais indispensables...
Indispensables au fonctionnement du BIAM, le poste électrique HT-BT et le local cuves sont maintenant adossés au bâtiment principal.
Le génie-civil du poste électrique HT-BT, visible sur la photo précédente, tout comme ses équipements intérieurs sont achevés. Le local renferme des transformateurs, différentes armoires de distribution par étage, mais aussi des dispositifs pour la reprise en secours des alimentations électriques, en cas de coupure ou lors d'opérations de contrôle ou de maintenance. Le poste est aujourd'hui raccordé au bâtiment principal et tous les équipements sont fonctionnels grâce au travail des équipes du groupe SCHNEIDER Electric France, d'EPSYS, coordonné par le groupe électrique du CEA.
Quelques-unes des armoires de distribution électrique renfermées dans le poste HT-BT - Crédit photo : Cyrille FORESTIER, CEA
Dans sa démarche de transparence et de sécurité environnementale, le CEA et donc le BIAM, collecte tous les effluents chimiques issus de ses laboratoires. Les rejets des laboratoires de biologie du BIAM sont soumis à une analyse approfondie avant la délivrance d'une autorisation de rejet dans le réseau des effluents industriels du CEA Cadarache, où ils sont alors retraités. Ainsi pour stocker temporairement ses rejets, le BIAM a construit un bâtiment renfermant deux cuves de 60 m3 (cf. newsletter 6 pour des illustrations de la livraison et pose des cuves). Ce bâtiment dispose aussi de quelques édicules de stockage facilement accessibles pour les salariés depuis le bâtiment principal.
Le local cuve (en partie gauche) et ses édicules de stockage complétés par des extracteurs d’air en toiture (partie droite) - Crédit photo : Cyrille FORESTIER, CEA
Des toitures étanchées, mais lourdement instrumentées...
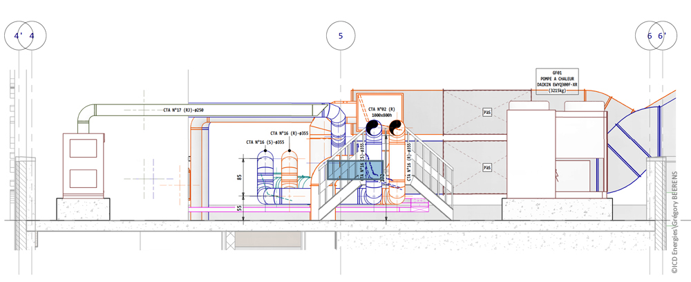
Dans le
précédent numéro de cette newsletter, nous vous avions décrit la conception et la réalisation en cours des 8 toits terrasses du bâtiment, isolés thermiquement, étanchés et prêts à recevoir sur des massifs bétons les différents équipements de chauffage, ventilation et climatisation. Depuis les étanchéités sont achevées, et peu à peu les équipements ont rejoint par grutage les différentes toitures. Actuellement ce sont les chemins de câbles et les différentes gaines qui sont livrés pour être assemblés aux groupes frigorifiques, aux condenseurs, aux batteries de dégivrage, aux compresseurs et VRV, aux centrales de traitement d'air... Une fois terminé l'assemblage de ce véritable mécano géant d'instruments et de conduits, il sera obligatoire d'emprunter des cheminements dédiés, avec de nombreuses serrureries comme des garde-corps, des ponts ou des caillebotis... pour circuler sur la toiture et assurer la maintenance de ces équipements.

Plan de principe d’une coupe d’implantation du réseau CVC en toiture Sud avec un pont de circulation pour la maintenance – Plan réalisé par Grégory BEERENS, ICD Énergies
L‘intérieur du bâtiment présente ses appartements témoins !
L'intérieur du bâtiment a lui aussi bien changé ! Les 3 escaliers desservant les 5 niveaux du bâtiment (toitures terrasses inclues) ont été équipés de colonnes sèches pour les pompiers et doublés par un ascenseur et un ascenseur-monte-charge. Ce monte-charge est fort utile aux compagnons depuis le démontage de la grue, car il achemine dans les étages les pièces les plus lourdes comme les matériaux, les tourets de câbles électriques, les éléments constitutifs des paillasses et sorbonnes de laboratoire, etc.
Rapidement, il apparut nécessaire que le futur exploitant puisse valider ses choix « sur catalogue » de peinture, de revêtement de sols dans les bureaux, dans les circulations ou dans les laboratoires, de dalles de faux-plafonds et de luminaire, de même que les oculi ou le plaquage des portes... À ce dessein, tout comme dans une maison témoin, un bureau type et un laboratoire témoin furent construits. Pas de mauvaise surprise, pour nos visiteurs : progressivement, toutes les équipes du BIAM découvrirent avec plaisir leurs futurs locaux, lumineux et colorés !
Un bureau type dans le futur bâtiment du BIAM : lumineux, fonctionnel avec des goulottes de prises électriques et de prises réseaux, des dalles de luminaires à LED au plafond sur détecteur de présence, des locaux climatisés, des surfaces pour préserver les unités de passage, des brise-soleil à lames réglables à l’extérieur pour tamiser le soleil méditerranéen... Tout est là ! - Crédit photo : Cyrille FORESTIER, CEA
Un laboratoire type dans le futur bâtiment du BIAM : paillasses en émalite équipées d’étagères réglables, prise de courant et prise réseau sur les paillasses, eau chaude eau froide et eau désionisée sur tous les éviers, des sorbonnes dernier cri avec détecteur de présence pour limiter les pertes thermiques, une climatisation et un renouvèlement d’air à raison de 7 fois volume du local par heure, une lumière naturelle en provenance du patio à tous les postes de travail complétée par des dalles de luminaires à LED sur détecteur de présence... Avons-nous oublié quelque chose ? - Crédit photo : Cyrille FORESTIER, CEA
Dans les faux-plafonds des circulations, ça chemine à fond !
Tel un organisme vivant, toutes les pièces de vie du bâtiment doivent être alimentées par des câbles électriques, des câbles réseaux et des gaines de ventilation. Dans les laboratoires, s'ajoutent tous les circuits de fournitures d'eau (chaude/froide, adoucie, désionisée), de gaz (CO2, O2, N2, He, Ar...) et de détection des risques (capteur incendie, détecteur d'anoxie...). Avant d'atteindre les locaux, bureaux ou laboratoires, toutes ces alimentations et fluides circulent sur des chemins de câbles, tels les vaisseaux sanguins d'un animal, dans les faux-plafonds des couloirs. Ordonnés en altimétrie, d'un côté de la circulation se trouvent, du haut vers le bas : les câbles porteurs des courants faibles pour la téléalarme, la voix (téléphonie et réseau de diffusion d'ordres), les données et l'image (câbles Ethernet), puis les câbles porteurs des courants forts électriques. Au centre de la circulation se trouvent les gaines de ventilation. Enfin, de l'autre côté de la circulation sont situées les boucles des différents réseaux d'eaux et de fluides spéciaux (gaz). Une place pour chacun et chacun à sa place !
|
|
Exemple de chemin de câbles dans les circulations avec les courants faibles et forts (à droite), les gaines de ventilation (au centre) et la plomberie et fluides spéciaux (à gauche) - Crédit photo : Cyrille FORESTIER, CEA
Plateaux techniques et plateformes technologiques du BRD
Le futur bâtiment du BIAM, décomposé en BR et BRD, dispose d'environ 7 500 m2 sur plusieurs niveaux dont les deux-tiers des surfaces sont dédiés à la recherche fondamentale pour répondre à la mission première de tout chercheur : faire progresser les connaissances. Ainsi, 2 240 m2 sont occupés par les laboratoires du BR, tous situés autour du patio central pour un accès privilégié à la lumière naturelle. Les équipes de recherche utilisent aussi de nombreux grands instruments, regroupés au sein du BRD dans 1 415 m2 de plateaux techniques (e.g., ZoOM, la Zone d'Observation en Microscopie) ou plateformes technologiques (e.g., la plateforme Phytotec). La nature et le coût élevé de ces équipements requierent leur mutualisation, y compris en termes de personnels qualifiés, et leur ouverture aux collaborations académiques et industrielles. Ces collaborations, nourries par les plateaux techniques et plateformes technologiques, contribuent souvent à la montée en maturité technologique des programmes de R&D, voire encouragent certains chercheurs à se lancer dans l'aventure de la création d'entreprises de biotechnologies. Des connaissances produites dans le BR, des inventions et innovations technologiques voient le jour dans le BRD !
Plusieurs plateaux techniques (ZoOM, SALTO, L2-Nano, ionomique, ProteinTec, spectro gaz...) et plateformes technologiques (HelioBiotec, Phytotec, Preuve de concept) sont actuellement en construction dans le BRD. Les grands équipements n'arriveront qu'au moment du déménagement, mais tout sera prêt pour les accueillir : lignes de puissance, platines de gaz, réseaux industriels dédiés, boucle d'eau glacée, ventilation adaptée, pont roulant, détecteurs en tout genre, contrôle commande... Les deux clichés suivants illustrent des équipements emblématiques que renferme la plateforme technologique Phytotec, labélisée IBiSA (Infrastructure en Biologie Santé Agronomie).
Occupant deux étages du BRD, 96 m2 au sol et presque 10 m de hauteur sous-plafond, la zone des huit « boites à gants » de Phytotec en impose par son volume. Un pont-roulant au plafond permettra d’assembler ou démonter les différents rehausses des boites à gants afin que ces dernières s’adaptent à la taille des plantes à cultiver : Arabidopis, Riz, Maïs, Blé, Platane... – Crédit photo : Aude FERRIERE JEANNEAU, CEA.
Au R+1, la plateforme Phytotec met à disposition des équipes 13 phytotrons OGM de classe S2 enceintes pour la culture et le conditionnement de plantes génétiquement modifiées, qu'il s'agisse de plantes in vitro, de plantes de petite taille telles qu'Arabidopsis ou de plantes de grande culture, toutes cultivées à l'aide de la dernière génération de plafonniers LEDs, d'un spectre très proche de celui du soleil. - Crédit photo : Cyrille FORESTIER, CEA
Pour découvrir de vos propres yeux, le bâtiment, ses plateaux techniques et plateformes, ou encore l'environnement de travail dans la zone de la « Cité des Énergies », contactez-nous sans attendre à
cite-des-energies@cea.fr
